View the Images & Articles Gallery page. |
![]() |
|||||||||
|
Owner Chuck Cicirello (also going by the name 'Chuck Balestreri') opened this bar shortly after closing his previous venture, the Neptune Club. An Advertisement for The Factory first appeared in the April 1973 issue of GPU News. The Factory is THE Legendary Milwaukee Bar- it is remembered for its large size and high ceilings, innovative decorations and schemes, and was one of the first in the Midwest with a DJ and light show (this was pre-disco!). Thus The Factory was perfectly positioned to be a smash hit when the age of disco came. It opened with 2,400 square feet of public space, and about doubled over time. Its advertising originally read "If you want to make it, make it at The Factory". During virtually its entire run, the main room of the bar featured a huge island bar with service on all four sides. To the right of the dance floor was a small section (behind the entrance lobby and stairs) with a small beer-bar tap (for special events) and the restrooms. At various stages of decoration, some of the legendary designs of the Factory included:
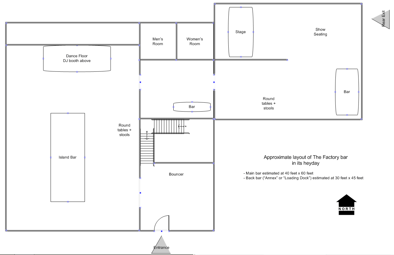
Starting around September 1975, the Factory was also known as The Inferno; initially a large devil's head (or dragon's head) was suspended over the dance floor, which periodically snorted 'smoke' or fog over dancers. A January 1976 ad in GPU News calls the bar "Devilishly Devine", and the August 7, 1976 issue of the local "GLIB Guide" describes the business as follows: "Boogie down with the snorting dragon and nightly gang. Weekends offer second dance floor." But the August 28, 1976 issue of "GLIB Guide" followed up with: "The dragon is gone. The Inferno reopened after a remodeling right after the first issue of Glib had been distributed. So the listing on the Inferno was quickly dated. The look is now mirrors and lots of colored lights." Then in mid-1977, another attempt was made to rename the bar; this time to On Broadway. While advertising used that name ("On Broadway- Devilishly Divine") for the next few months, customers still routinely called it The Factory. By the time the owner opened the Broadway Health Club above the bar in February 1978 (see below), it was again advertising as "The Factory". The Factory is also remembered as generous in specials and giveaways. For example, at New Years Eve parties, there were frequently handouts to each patron (such as the plastic hats given away for New Years 1981 and 1982, shown here.) During a good part of its run, the Factory also included an additional back room with a second full-service bar and game room. Connecting through the beer bar, this room, early on called the Marquee Room, was used for additional dancing and quieter visiting during busy hours, and most notably to host meetings and with a stage for performances. Several 'drag' contests and drag shows were held there, as well as musical performances and benefit shows. (See sketch of layout.) This back area was later called "The Loading Dock". In February of 1978, owner Chuck opened the upstairs in the same building as a men's health club/ spa (aka bath house), the Broadway Health Club, which was raided on numerous occasions by the then notoriously homophobic Milwaukee Police. There were two tragedies associated with this bar. The first was in May 1979, when a bouncer, 'Tiny' (James W. Kallas) disappeared after leaving the bar, and was found dead a week later. Then, in December 1980, a patron returned to the bar with a pistol after an arguement, and after ordering all patrons and employees to the floor, shot and killed the doorman/bouncer, Dennis Wesela. The later killing stirred up the gay community, prompting more community awareness and the attention of the District Attorney. The Milwaukee Journal, Milwaukee's daily newspaper, featured the Factory as its 'Accent' section's "IN Spot" on Friday, April 23, 1982, describing it as follows: A Place to Dance Much of the Factory's reputation comes from its dance floor, considered by some to be the best in the city. lt's not unusual to see many couples, often of the same sex, dancing for hours on end. The Milwaukee punk-rock scene had its beginnings at clubs attended primarily by gay patrons because of their reputation for being "wide open." Before a club catering to local punks existed, they found that gay bars were the only haunts that smiled on black leather pants and mauve hair. Although the floor space for dancing is hard-fought for, the light shows and selection of music make the elbowing seem worthwhile. To dance at The Factory is to experience trance on a plane, outside the normal dimension, where music and light meet anmd fuse into into glowing, pulsating ether. Colors collide with each other, merging into colors yet unnamed. The combination of a sophisticated lighting system with tasteful sets of disco and new wave inspire sensations that transcend the sum of The Factory's parts. Conversation is painful and best avoided, as the awesome sound system renders inaudible any words not shouted directly into a neighboring ear. Non-verbal communication is used by necessity as well as by choice. Located near Commission Row, at night an empty district of close-packed warehouses and dark streets, The Factory has a sense of uniqueness, a feeling apart from the outside world. It was a shock to the gay community when The Factory announced it would be closing. But the days of disco were already in decline, and competition had opened up from what was first "Gary's" in 1975, and then Club Circus in 1976; that same bar would eventually become Club 219 in 1981. The relentless competition required drastic changes and the response was to close and look for another venue with a fresh look. This bar was followed by two other Factory bars opened by Chuck: the Factory II in 1982 at 130 E. Juneau; and the Factory 3 on North Broadway north of the expressway. While both popular in their day, neither matched the long-term appeal, and no bar in Milwaukee has ever come close to the legendary status, of the original "The Factory". The history of all three "The Factory" bars, and Chuck Cicirello, was published on the OnMilwaukee.com website in 2024. (A book, "LGBT Milwaukee" by Michail Takach, seeks to make the story of LGBT Milwaukee accessible, visible, and portable for future generations--before it is too late. The Factory is one of many early LGBT landmarks documented in the book.) Recollections: The following are recollections of others who have been kind enough to submit their personal memories to the webmaster. You are welcome to do the same! The Factory - The first gay disco I was ever in, on Halloween night, 1973. On that night, I was taken to the factory by a guy I had just met through a personal ad. Upon entering the Factory, the assistant foreman and the union steward from the company I worked at were standing in the foyer. Great shock for me. I moved quickly into the bar to get lost in the crowd and stepped on the gown of a drag queen who nearly punched me. Remember the dragon/bull at the dance floor (no one could decide what it was supposed to be) - anyway, the thing would occasionally blow out clouds of dry ice steam through its nose. Remember during the humid summer months how quickly guys would get rid of their shirts while dancing. One summer night, a cute blond guy dancing in cutoffs, decided to drop those as well, dancing around in his birthday suit. The staff came running over to cover him up and I guess he got blacklisted from the bar for awhile. It was a fun place, very different than any gay bar in the city in its day. Luckily it existed during the cusp and wane of the Sexual Revolution prior to the AIDS scare that virtually crushed the sexual liberation that swept the country which included the GBLTG community. The mix of patrons was interesting, too. Most people just went there to dance and have fun. If someone went home with someone, it was already yesterday's news before the deed was sealed. People didn't fuss and stigmatize the situation or the 'culprits' the way they do
now because we were having too much fun. The crowd's libido was exercised by sexy navy boys on shore leave that frequented the bar on summer nights. And 'oh-what-a-nights' they were! I remember the lavish drag shows at the Factory. The Neptune Club on Humboldt and Kane was also a great dance bar and general good time; I'd forgotten that Chuck owned them both.
We used to call it The Fagtree. Neptune was great. I hated that it
closed so soon. It was a fun place, very different then any gay bar in the city in its day. Luckily it existed during the cusp and wane of the Sexual Revolution prior to the AIDS scare that virtually crushed the sexual liberation that swept the country which included the GBLTG community. The mix of patrons was interesting, too. Most people just went there to dance and have fun. If someone went home with someone, it was already yesterday's news before the deed was sealed. People didn't fuss and stigmatize the situation or the 'culprits' the way they do now because we were having too much fun. The crowd's libido was exercised by sexy navy boys on shore leave that frequented the bar on summer nights. And 'oh-what-a-nights' they were! My first experiences out in Milwaukee were at the Factory! I'll never forget bartender Tony Kiehl (sp?), who used to throw a handful of ice at me every time he saw me come in. No matter where I was standing at the bar, glittering cubes came flying my way...and god help anyone standing in between! Needless to say, I had a HUGE crush on him. When he moved over to 219, I followed. Sadly, both Tony AND the Factory are long gone. |
|
Credits: web site concept, content and design, and bar history by Don Schwamb.
Last updated: July-2023.

This work is licensed under a
Creative Commons Attribution-NonCommercial-ShareAlike 4.0 International License.